「自宅が登録有形文化財」築150年の旧家に住む夫妻、13代目が守る"誇り"と"維持"のリアル 群馬県太田市・片山家住宅
「自宅が文化財」。すごいパワーワードだと思った。群馬県太田市で農業を営む片山さん一家は、明治期に再建され、登録有形文化財として現存する住宅で暮らしている。片山家住宅で13代目当主の片山英彌(かたやま・ひでや)さんと二人の息子さんにお話を伺い、歴史ある建物を守りながら生きることの重みと希望をたどります。
打ち壊しを乗り越え再建された明治時代の大規模農家
大きな農家の住まいが散見される群馬県太田市。晩秋にもかかわらず瑞々しいケール畑の向こうに、ひときわ立派な門構えを見せているのが、築約150年の「片山家住宅」です。
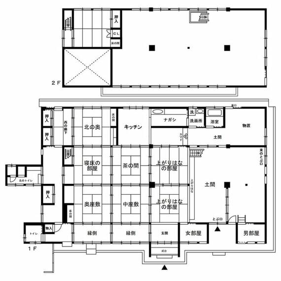
登録有形文化財として登録を受けた明治期の大規模農家住宅で、建坪94坪(310平米)という非常に大きな主屋のほか、長屋門・北の蔵・南の蔵・井戸屋・下の便所からなる貴重な屋敷構えが、ほぼ当時の姿のまま残されています。特徴的なのは、13代目当主である片山英彌さんと妻の美枝子(みえこ)さんが、現在も主屋で暮らしを営んでいることです。


















