20万円で買った古民家に住む男「自給自足」の現実 お金にも文明にも頼らず生きるとはどういうことか
畳の下の板は腐り、ともかくどうしようもなく汚い廃屋だったが、どこか懐かしい昭和のニオイが満ちていた。
三方が山に囲まれ、渓沿いの小道が屈曲して3キロ下のバス道路に繫がっている。母屋の西40メートルに渓流が流れ、鳥、風、ときどきはるか上空を飛んでいく飛行機の音しかしない。携帯の電波はもちろん届かない。
本当のことを白状すると、最初から明確に、できるだけお金を使わずに自給自足する生活をイメージしていたわけではなかった。なんとなく田舎の古民家ならば、水や燃料などの公共料金を支払わずに、暮らしが成り立つのではないかと考えていた程度だった。
だが、百之助で、畳の上に散らばったゴミを寄せ、できあがったスペースに寝転がって、釘をまったく使わない伝統木造建築のすすけた天井を見ているうちに、自分が漠然と考えていたことが、次第に頭の中で輪郭をもっていくのがわかった。
家を建てるのも生活するのもすべて現地調達
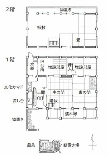
百之助の母屋を造っている材料(木材や茅や土)は、どこかで購入して、持ってきたものではない。そもそもこの家は、車が世の中に普及する前に建てられており、建材をよそから運び込むことはできなかった。
木こりが、周辺の山から丸太を切り出し、皮を剝ぎ、大工が(刃物を背負って麓の村から登ってきて)チョウナ(斧の一種で、削る作業に使う)でおおざっぱに製材し(梁にも柱にも削った跡が残っている)、曲がったり歪んだりした柱と梁にホゾを切って組み上げたのだ。土壁や土間の土ももちろん現地調達。屋根の茅は集落のどこかにあった茅場から刈ってきたもののはずだ。
すべて現地調達するしかなく、建てた後も、身の回りから食料や燃料を調達し、生活するしかなかった。だからこそ百之助は、そうやって生活できるように設計されていた。沢から水を引いて、水船(水を受けて溜めておく水槽)で受け、家の中の囲炉裏やカマドで火を燃やせるようになっているのだ。
なぜ、自分が強く古民家に惹きつけられるのかが、このときはっきりとわかった。まだ現代文明が一般に浸透していなかった時代に建てられた家は、自給自足で生きることを前提に造られている。そんな古民家こそ、お金にも文明にも頼らずに生きるための最高の住処になる。古民家こそ、自分の力で生きるための最強の施設、最強のパートナーなのだ。



















無料会員登録はこちら
ログインはこちら