このサイトを利用するには、コンテンツブロック機能(広告ブロック機能を持つ拡張機能等)を無効にしてページを再読み込みしてください。
なお、Microsoft Edgeをご利用のお客様はプライバシー設定が影響している可能性があるため「追跡防止を有効にする」の設定を「バランス(推奨)」にしてご利用をお願いいたします。詳細は下記のFAQページをご参照ください。 https://help.toyokeizai.net/hc/ja/articles/33846290888345
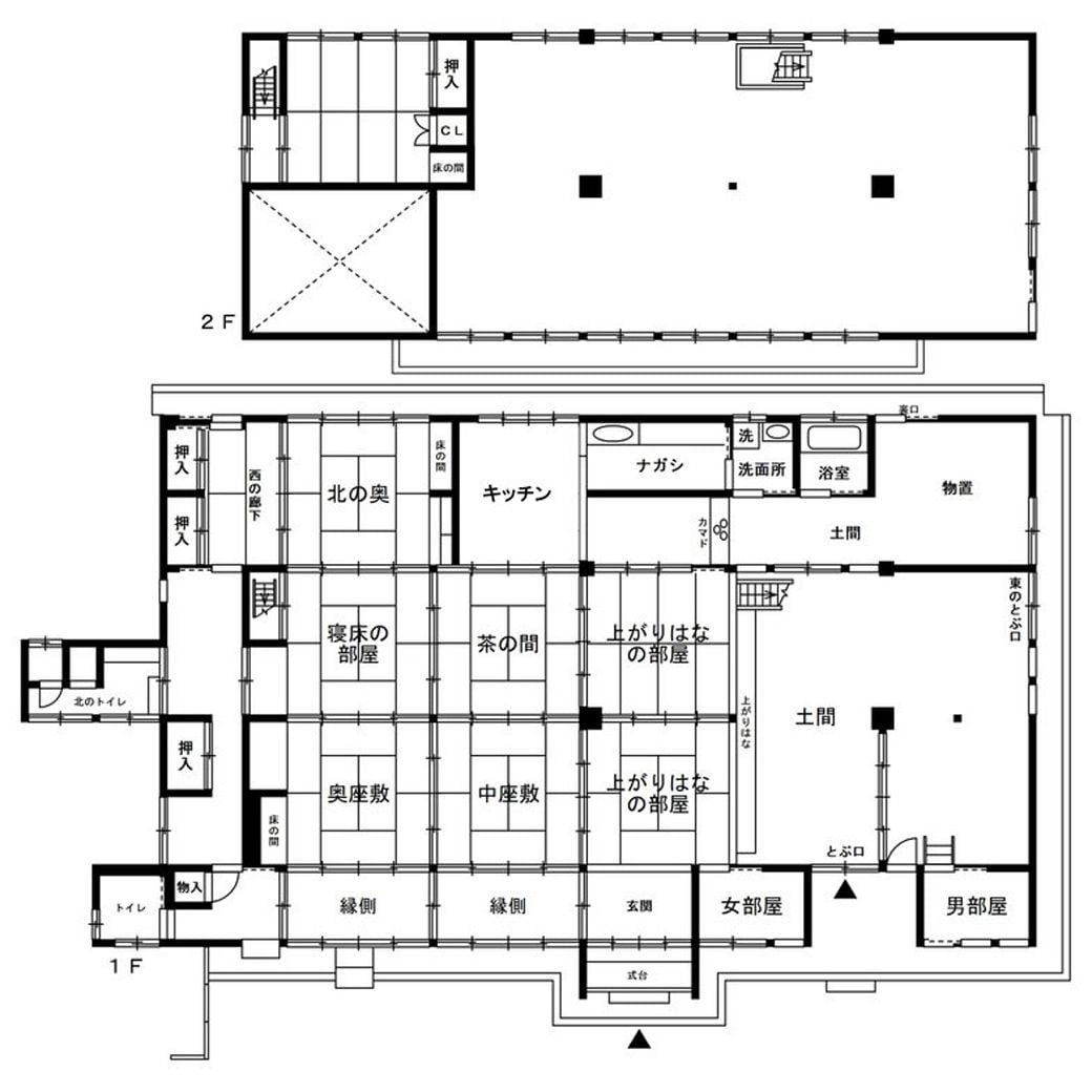
間取り図(画像:SUUMOジャーナル)
※過去1ヶ月以内の記事が対象
※過去1ヵ月以内の記事が対象
※週間いいねとシェアの合計(増分)
ブックマークした記事はマイページで確認できます
フォローした著者の最新記事が公開されると、メールでお知らせします。