PhotoGallery

青山に潜む"築50年の秘密基地"今も衰えぬ人気

中庭には大きなシンボルツリーが立っている(写真:編集部撮影)
夜のビラ・モデルナ。昼間とはまた違った印象だ(写真:筆者撮影)
「ビラ・モデルナ」の外観(写真:編集部撮影)
見上げるとギザギザの建物が目に入る(写真:筆者撮影)
広場には植物がたくさん置かれ、樹木とともに美しく管理されている(写真:筆者撮影)
グリーンのタイルが敷かれた広場。回転扉は竣工時から変わらないデザイン(写真:筆者撮影)
回転扉。手で押して入るときの高揚感がたまらない(写真:筆者撮影)
ロビーに置かれたラグジュアリーなソファセット。このほか、テーブルとチェアもあり、来客との応対ができる(写真:筆者撮影)
ロビー階には男女別の化粧室があり、回転扉と同じモチーフが使われている(写真:筆者撮影)
ビラ・モデルナのエントランスを入ったところにあるフロント(写真:編集部撮影)
ロビーの壁にはホテルを彷彿とさせるルームナンバーの刻印がある(写真:筆者撮影)
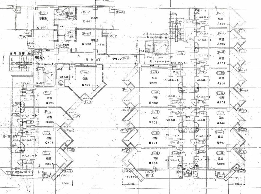
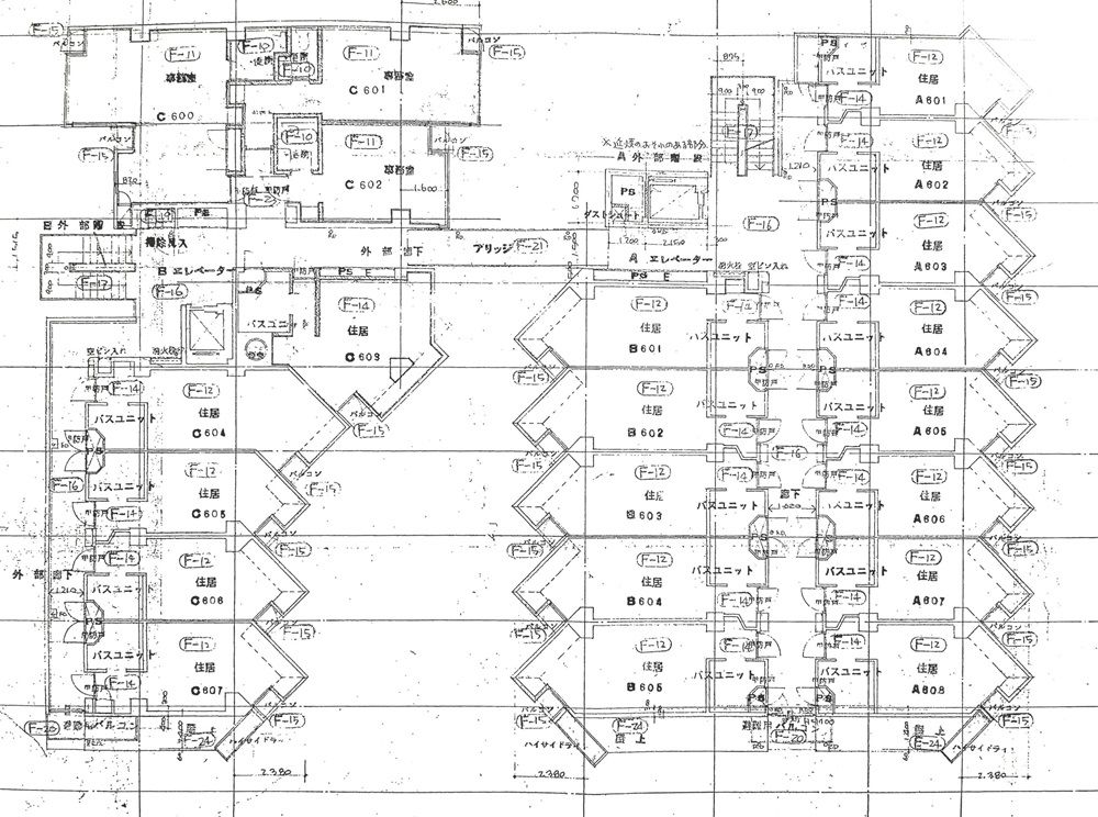
ビラ・モデルナの6階部分の平面図(図:興和商事提供、筆者撮影)
共用の通路。右手がB棟、左手がA棟(写真:編集部撮影)
共用廊下の壁にも部屋番号が書かれている(写真:筆者撮影)
住戸の扉には「モデルナ」の「M」のマークが付けられている(写真:編集部撮影)
ビラ・モデルナのモデルルーム。奥の窓側に面したデスクでは仕事が捗りそう。中央のテーブルで打ち合わせが行える(写真:編集部撮影)
ビラ・モデルナのモデルルームの一角。ワンルームの中でさまざまな活用のイメージが湧く(写真:編集部撮影)
コンパクトな水回り。手を洗ったりコップを洗ったりすることはできる(写真:筆者撮影)
ビラ・モデルナのモデルルームのトイレ。意外と広く快適そうだ(写真:編集部撮影)
ユニットバス空間。壁の曲線やライトがかわいい(写真:編集部撮影)
部屋の壁に取り付けられた電話。ホテルのようにフロントにつながる(写真:編集部撮影)
傘立てはドアの脇の空間を活用(写真:筆者撮影)
モデルルームとは別の一室。奥には備え付けの台があり、引き出しも付いている。パソコンを置いて作業をするのにちょうどいい(写真:編集部撮影)
屋根に当たる部分に斜めに窓が入っている(写真:筆者撮影)
中庭方面に向いた真壁さんの部屋の窓。透ける素材のパーツでさりげなく目隠しされている(写真:筆者撮影)
四角いブロックの上部を見ると、窓ガラスが斜めに入っていることがわかる(写真:筆者撮影)
中庭のタイルに埋め込まれたカラフルなモザイクタイル(写真:筆者撮影)
中庭広場を上から見る(写真:筆者撮影)
9階のブリッジから見下ろす(写真:編集部撮影)
道路に面したところにある青い扉。白い建物にマッチして目を引く(写真:編集部撮影)
ビラシリーズの模型。中段左にビラ・モデルナの模型がある(写真:筆者撮影)
興和商事株式会社に飾られているビラ・モデルナの模型(写真:編集部撮影)
原宿駅から徒歩5分ほどの場所に立つビラ・ビアンカの模型。積み木のようにガラスのキューブが重なる姿が印象的(写真:筆者撮影)
50年前のビラ・モデルナのパンフレット(写真:筆者撮影)
ビラ・モデルナのパンフレット。カラーで模型やイメージ写真もふんだんに使われている(写真:編集部撮影)
ビラ・モデルナのパンフレット(写真:編集部撮影)
ビラ・モデルナの壁。白い壁に「VILLA MODERNA」のレタリングがかっこいい(写真:筆者撮影)
思わず足を止めて眺めてしまうような、街中にある少し変わった形をした物件ーー。いったいなぜ、そのよう…